Chiesa di Sant'Ermacora e San Fortunato martiri, Arta Terme

Localizzazione
Arta Terme (UD)
Oggetto
chiesa
Denominazione
Chiesa di Sant'Ermacora e San Fortunato martiri
Ambito culturale
maestranze carniche
Uso storico
culto
Uso attuale
culto
Codice scheda
A_7316
Iscrizioni

1300 - 1327
chiesa primitiva dedicata a Santa Margherita in piazzale Cella; di essa ri mane solo il portale

24/09/1840 - 24/09/1840
Posa della prima pietra della nuova chiesa sacramentale, "giudicata la vec chia in istato da non potersi ristaurare".

1941/05/00 - 07/11/1941
Nel maggio 1841 vengono demoliti il campanile, la sacrestia e la cappella del crocifisso della chiesa primitiva. I materiali sono adoperati per la c ostruzione della nuova chiesa. Il 7 novembre 1841 è terminata la demolizio ne della vecchia chiesa e si trasporta l'altare maggiore.

1842 - 1842
Il terreno su cui sorgevano la chiesa primitiva e il cimitero che la circo ndava, soppresso nel 1819, viene permutato con l'area su cui è in costruzi one la nuova chiesa, (proprietà dei fratelli Gio Batta e Giuseppe Jacotti) .

1843 - 1843
Nel 1843 si decide di chiudere con un muro il vecchio cimitero e di pianta re una croce ove sorgeva l'altar maggiore.

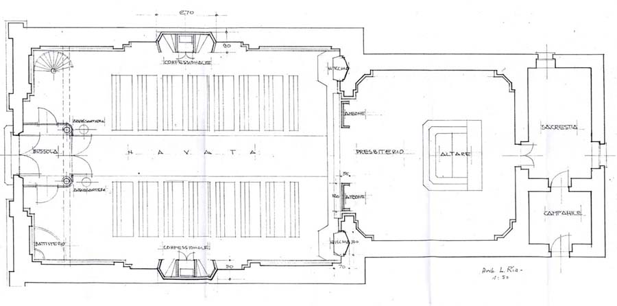
Presenta sagrestia e campanile incorporati nel corpo principale. Costruzio ne in muratura con aula re ttangolare e presbiterio.

Dove si trova